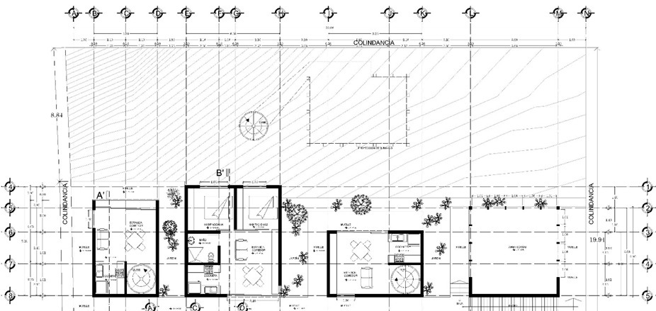
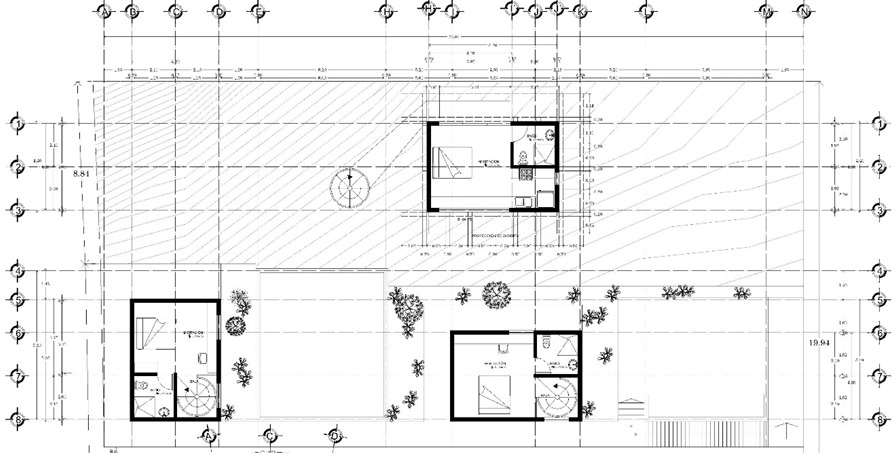
Proyecto: Villas O
Ubicación: San Cristóbal de las Casas, Chiapas.
Medidas: Varias
Área: 177.30 m2
Altura máxima: 8.00 m
Descripción: Conjunto de estructuras independientes con estilo de cabañas, diseñadas a base de mampostería confinada y perfiles de acero estructural. Diseñada en Abril de 2020.



