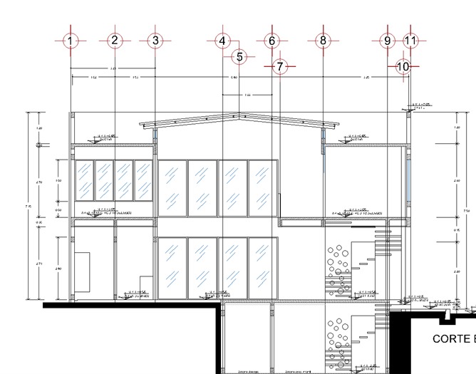
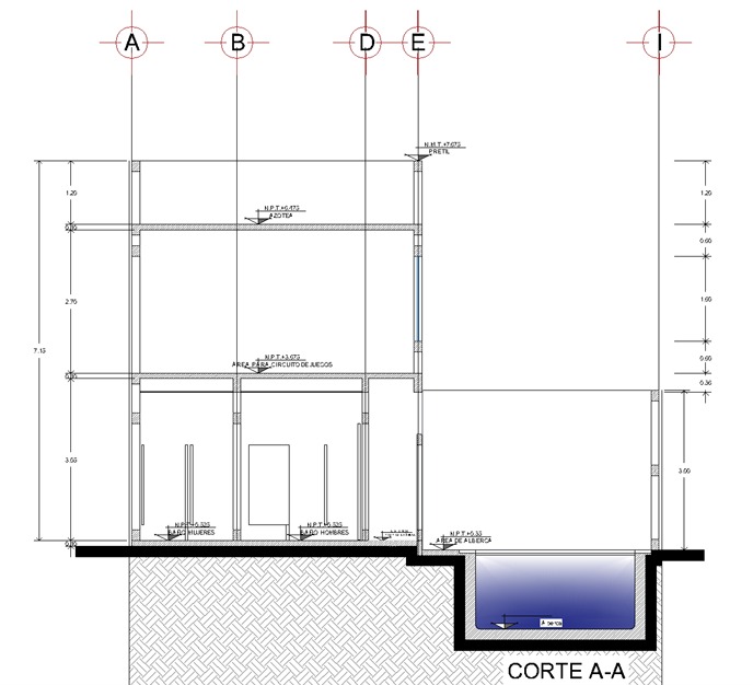
Proyecto: Salón de eventos

Ubicación: Oaxaca de Juárez, Oaxaca

Medidas: 10.00 m x 13.00 m

Área de construcción: 200.99 m2

Altura máxima: 7.15 m

Descripción: Estructura con irregularidad en planta, propuesta con muros de carga de mampostería confinada, además de algunos elementos de concreto reforzado para darle la rigidez suficiente evitar efectos de torsión, el sistema de piso es a base losas macizas de concreto y en azotea una cubierta de cristal. Diseñada en Agosto de 2020.