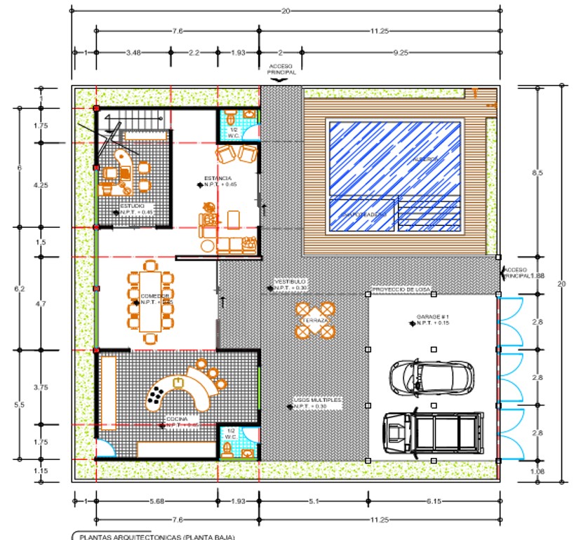
Proyecto: Residencia Albania.
Ubicación: Tuxtla Gutiérrez Chiapas .
Medidas: 18.65 mts X 20.00 mts.
Área: 680m2
Altura Máxima: 9.30 mts.
Descripción: Análisis y diseño estructural con estructuras de marco rígido de concreto, zapatas aisladas con contratrabes, en la ciudad de Tuxtla Gutiérrez Chiapas, diseñada en noviembre de 2017.

